How Long Does an Interior Design Project in San Francisco Really Take?

An honest, phase-by-phase guide for Bay Area homeowners planning a renovation, new build, or furnishings project.

If you've started asking how long a full-service interior design project in San Francisco actually takes — you're asking the right question at the right time. Timeline is one of the most misunderstood parts of working with an interior designer, and the gap between expectation and reality is where a lot of project stress originates.

The homes that look the most effortless are usually the ones that took the longest to get right. The stone threshold that disappears into the floor, the built-in that feels like it was always there, the room where nothing calls attention to itself — those details are the product of time spent designing them correctly, and time spent building them that way. How long your project takes is largely a function of how resolved you want it to be. The more considered the outcome, the more considered the process.

Not sure where to start? We're happy to talk through what your project might look like. Book a discovery call with us.

How Long Does an Interior Design Project Take?

A full-service interior design project in San Francisco typically runs eighteen to twenty-four months for a whole-home renovation — sometimes longer. Every project is different, which is why we include an estimated design timeline in your proposal before you sign anything. From there, your general contractor holds the construction schedule, and furniture and procurement runs as its own parallel track throughout. How smoothly everything moves depends on scope, permitting, and how quickly decisions can be made when they come up — something we'll navigate together. The goal is always a schedule that's honest from the start. 

Here's what's inside that number.

Bathroom renovation in Parnassus Heights, San Francisco featuring white square tile vignette around the tub surround and shower with recessed niche and glass panel

A bathroom from our Parnassus Heights full home renovation in San Francisco. Small-format white square tile by Fireclay Tile, wrapping the vanity countertop, tub surround, and recessed shower niche.

The Design Phase: Where Your Interior Desinger Starts

Before a single nail is driven, there's significant work happening on paper, in models, and across hundreds of decisions. This phase is where the project finds its foundation — and where the complexity of what you're building begins to shape everything that follows.

Phase 1: initial exploration

Starting a project of this scale can feel equal parts exciting and overwhelming. That's exactly where we want to meet you. Every project begins with a deep dive into who you are and how you live. Your interior designer is listening for the things you can't quite articulate yet — the way light makes you feel, the rooms where your family actually gathers, the details that matter to you even when you can't explain why.

For some projects, we'll also document and measure the existing conditions of your home. In San Francisco especially, existing homes rarely match their original drawings — walls get moved, ceilings get dropped, structures get altered over decades of ownership. We need to start from the most accurate set of drawings available. Everything we design is built on top of what's actually there.

Average timeline: 3-6 weeks

Phase 2: Conceptual Design and Furniture Planning

Space planning and furniture layout happen in parallel from the start because what's built and what furnishes it inform each other at every turn. We translate everything we heard during Initial Exploration into concept imagery and floor plans — a first visual expression of what the design could become, not a finished set of decisions.

From there we begin looking at furniture — what's custom, what comes from trade vendors, what might be vintage, and what you already own that belongs in the new space. Furniture and material budgets are developed here too, deliberately — we want to confirm the design direction is within your budget range before the work goes deeper. Redesigning at a later stage because the numbers don't work is avoidable, and this is how we avoid it.

Average timeline: 4-8 weeks

Phase 3: Detailed Design

Concept approval is one of our favorite moments in a project — it means we've found the direction, and now we get to go deep. Detailed Design is where broad ideas become precise, considered choices: finalized plans, specific finishes and fixtures, the exact furnishings that will bring the design to life — decisions you can start to feel as well as see. The more intricate the scope, the more time this phase takes. A seamless transition from one finish to another doesn't happen by accident — it requires careful thought about how materials meet, how they'll be installed, and how they'll read together in the finished space. This is where the design stops being a collection of good selections and becomes something considered. An interior designer working at this level of detail is doing work that will disappear completely into the finished space, which is exactly the point.

Average timeline: 4-8 weeks

Phase 4: Documentation

Once Detailed Design is approved, our team develops the full set of technical drawings — elevations, lighting and electrical plans, finish schedules, and millwork specifications. This is the least visible phase of the project from your side — while we're heads down developing the drawing set, there's less back and forth with you during this period — but it's one of the most important. A contractor without complete documentation is making judgment calls on your behalf. These drawings remove the ambiguity around the design. The specification book we deliver alongside them clearly indicates which items will be procured by your contractor or through our team, and where applicable, directly by you.

Average timeline: 4-8 weeks

3D design study from the detailed design phase of our Parnassus Heights full home renovation exploring how 2x2 tile wainscoting reads across the bathroom as a whole

3D design study developed during the detailed design phase of our Parnassus Heights full home renovation, exploring how 2x2 tile wainscoting reads across the room as a whole.

Permitting in San Francisco: The Variable No One Can Fully Control

Here's where Bay Area projects diverge significantly from other markets. Permitting in San Francisco is genuinely unpredictable — timelines shift depending on project scope, the City's current workload, and whether your project involves structural changes, new plumbing, electrical reconfigurations, or any number of other factors. We've seen permits move relatively quickly. We've also seen projects in Parnassus Heights and Cole Valley sit in the queue far longer than anyone anticipated.

Once we hand documentation off, permitting is managed by your general contractor or architect depending on your project team. On projects where an architect is involved, our documentation is often folded into the construction set. We step in to provide plan check feedback as needed, but the submission and timeline are theirs to manage.

Specific Bay Area municipalities vary. Projects in Lafayette, Oakland, and Berkeley move through their permitting offices differently than San Francisco does.

Furniture Design and Procurement: The Parallel Track

Furniture design isn't a phase that comes after the architecture is resolved — it runs alongside it from the first floor plan. By the time we reach procurement, the selections have been in development for months. What happens in this phase is the translation of those decisions into orders, deliveries, and a carefully sequenced plan for getting everything to your home at the right moment.

The sequencing matters more than most clients expect. Custom furniture typically takes sixteen to twenty weeks to produce, not including shipping. Vintage pieces — the one-of-a-kind finds that can't be reordered if you wait — may need to be purchased well before construction is underway. Window treatments, which involve their own fabrication timeline for fabric, lining, and hardware, are specified and ordered with the same care. We're tracking all of it simultaneously, placing orders strategically so that your home is ready to receive what we've selected for it.

Before any orders are placed, you'll have seen and touched the selections in person. We present finish materials, specific fabrics, and furnishings in a way that lets you experience them together — how a fabric reads next to a stone sample, how a finish sits in natural light. These aren't decisions made from a screen. They're made from the actual materials, in your hands. For pieces with upholstered fabric, we request a cutting for approval before it ships to the manufacturer — a sample of the actual production fabric that we review and sign off on before production moves forward, because fabric can vary between dye lots in ways that matter.

Your existing furniture is part of this conversation too. Early in the process we document what you have — photographs, measurements, an honest assessment of condition. Some pieces will fold naturally into the new design. Others might be reupholstered or refinished to belong. And some, frankly, won't work — and we'll tell you that directly rather than design around something that doesn't serve the space. What you already own is an asset. We treat it like one.

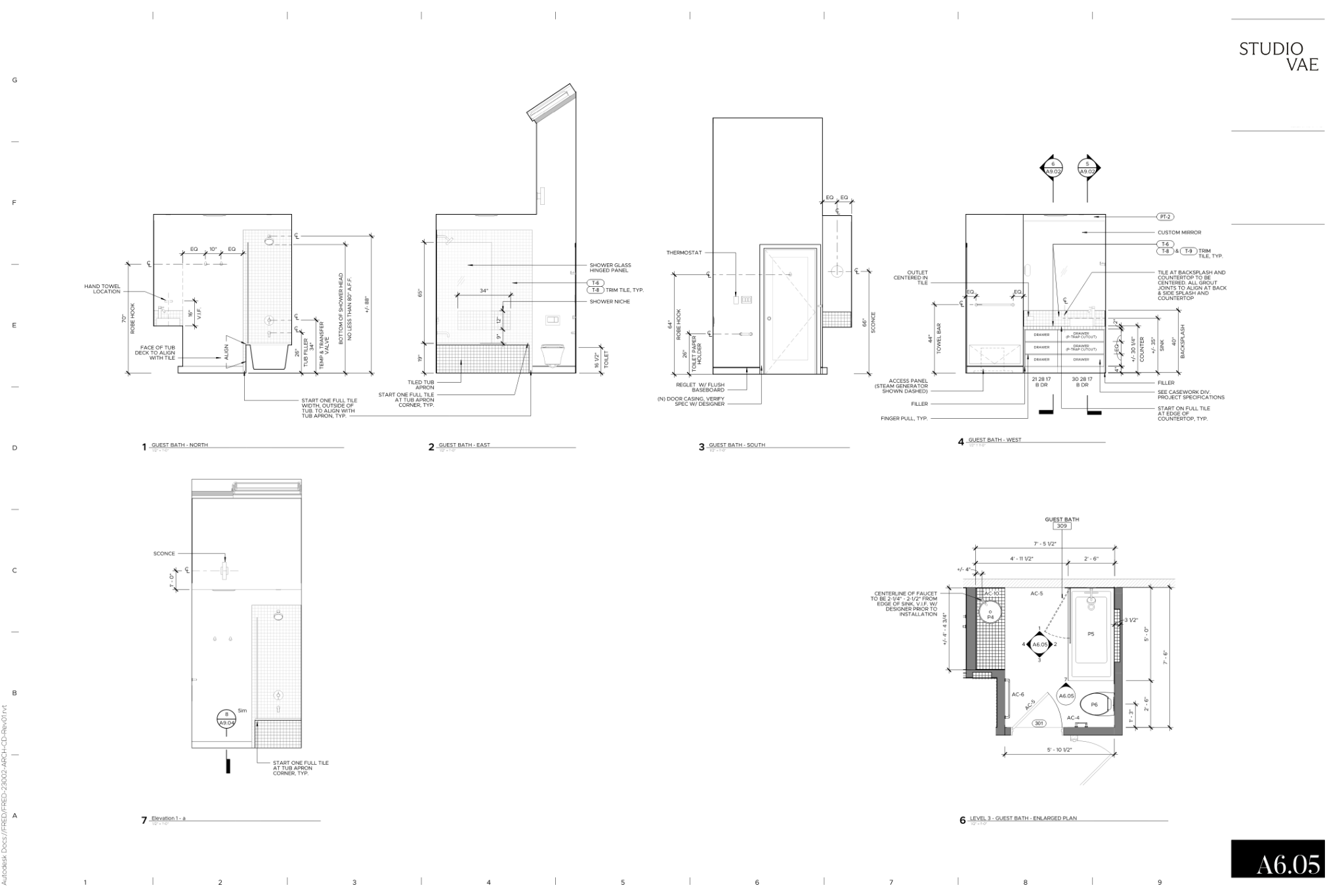
Construction drawing page from the Parnassus Heights, San Francisco full home renovation showing guest bathroom elevations and enlarged floor plan

A page from the construction set for the Parnassus Heights full home renovation, detailing the guest bathroom elevations and enlarged floor plan.

Construction: Trusting Your Team Through the Long Middle

Once permits are issued and your contractor mobilizes, construction begins — and this is where the project lives for the longest stretch. For a whole-home renovation in San Francisco, active construction typically runs six to twelve months depending on scope and complexity. The more considered the design, the more time it takes to build correctly. New builds run longer still.

This is also the phase that tests patience more than any other. There's a point — usually somewhere in the middle — where the space looks nothing like what you've been imagining. Walls are open, finishes are weeks away, and the finished rooms you've been picturing feel abstract. Every project goes through this. It's not a sign that something is wrong.

What carries you through it is the team around you. Your general contractor is managing the build — sequencing the work, coordinating trades, keeping the project moving. Your interior designer is on site at critical moments, reviewing shop drawings before fabrication begins, protecting the design decisions that were made during the months of planning that came before. Where an architect is involved, they're ensuring the structural and architectural intent is being executed correctly. Each role is distinct. Each one matters.

We've written in detail about what your interior designer does during construction — what we're reviewing, when we're on site, and how design intent gets protected when plans meet reality. If you're curious about what your interior designer is actually doing during this phase, this post is worth a read.

Installation: When It All Comes Together

Installation is the moment the project stops living in drawings and starts living in your home. By the time we arrive on site, the space has been cleaned and cleared — construction is behind you, and what happens next is ours to orchestrate.

We're there for every installation day, along with our installation team. The preparation starts well before anyone sets foot in your home — coordinating with the receiving warehouse to confirm every piece is accounted for, determining which rooms we're tackling first, and pulling floor plans and a room-by-room checklist for each space so that nothing gets placed by feel or guesswork. Window treatments go in first — installers working around furniture risk damage, and on a large-scale project that's not a risk worth taking. From there, furniture is placed, art is hung, and accessories are layered in. We measure out exactly where each piece belongs. 

Depending on the scope, installation runs anywhere from a few days to one to two weeks. The days are long. Each room builds toward the version of itself you've been imagining for months — sometimes over a year.

It's not always seamless. A lampshade arrives damaged and needs to be remade. A furniture leg has a scratch that needs touching up before it goes into the room. These things happen, and we handle them — that's part of what we're there for. What matters is that by the end of installation, the space reflects exactly what was designed. That's the standard we hold, and it's what makes the long days worth it.

Custom curved banquette with built-in drawer storage and red oak open shelving flanking the media wall in the Parnassus Heights full home renovation, San Francisco

Custom curved banquette with built-in drawer storage and red oak open shelving flank the media wall in the Parnassus Heights full home renovation.

What Affects Your Interior Design Timeline in San Francisco

Scope is the primary driver, and the complexity within that scope is what most people underestimate. A project with custom millwork, bespoke furniture, and detailed finish work will take longer than a project of the same square footage at a simpler specification level. More intricate details take longer to design, document, and build — and the result, when done well, looks like it required no effort at all.

Beyond scope, the variables that most consistently shift timelines across San Francisco and the Bay Area are:

  • Permitting — as covered above, this is the variable most outside anyone's control. Timelines vary significantly across San Francisco and the Bay Area, and building awareness of it into your expectations from the start is the best preparation anyone can offer.

  • Client feedback and decision speed — design moves in stages, and each stage requires your input before the next can begin. Timely feedback keeps the project on track — unnecessary delays between stages add up. We outline what's needed and when in our documentation from the start of every project.

  • Client changes mid-project — scope changes after design is underway affect the timeline. The further into the process a change is made, the more it costs in time. We'll always tell you that honestly before anything is revised.

  • Furniture and material lead times — particularly for custom, long-lead, or imported pieces. Ordering strategically is how we minimize the impact, but some lead times are simply what they are. Shipping damage is also a reality on large procurement scopes — we handle it when it happens, but it can affect timing on individual pieces.

  • Contractor scheduling —  good contractors in San Francisco and the Bay Area book out. We can make recommendations, but contractor availability is its own variable — one that affects when construction begins regardless of how smoothly the design phase goes.

  • Unforeseen site conditions — Existing homes, especially in San Francisco, have a way of revealing surprises when walls open up — old plumbing, outdated electrical, structural conditions that weren't visible until construction began. These are impossible to fully anticipate and can affect the schedule when they surface.

We won't rush the design process to hit a timeline — the quality of what gets built depends on the quality of what gets designed.

Studio VAE interior designers Veronica and Aggie reviewing fabric samples and design drawings, San Francisco

San Francisco Home Renovation Timeline: Key Takeaways

Here's what to carry with you as you start planning.

  • A full-service interior design project in San Francisco typically runs eighteen to twenty-four months for a whole-home renovation — sometimes longer depending on scope and complexity

  • The design phase happens entirely before construction begins and takes longer than most clients expect — it's where the foundation of everything that follows gets built.

  • Furniture design starts at concept, not at the end — layout, sourcing, and selection run as a parallel track through the entire process

  • The more detailed and refined the design, the longer each phase takes to design, document, and build correctly — that's not inefficiency, that's the work

  • Permitting in San Francisco is unpredictable and outside anyone's full control — plan for it, but don't count on a specific timeline

  • Studio VAE provides an estimated design timeline in your proposal before you sign anything — construction is scheduled by your general contractor, and we'll navigate everything in between together

If you're planning a renovation or new build, the earlier we're involved the better. Clients who come to us at the beginning of the process get a different outcome than those who come to us mid-stream — not because we work differently, but because there's more room to get it right.

One more thing worth knowing: we take on new clients on a first-come-first-served basis. If you have a project on the horizon, reaching out three to six months before you'd like to begin gives you the best chance of securing your preferred start date.

If you're ready to begin, we'd love to hear from you. Reach out here and let's talk through your project.

— Veronica & Aggie

 

Frequently Asked Questions About Interior Design Project Timelines

Q: How long does a full home renovation take in San Francisco?
A: For a whole-home renovation in San Francisco, plan for eighteen to twenty-four months from first conversation to installation day — sometimes longer depending on scope and complexity. That includes the full design phase before construction begins, a permitting period that varies by project, and active construction. Every project is different — which is why the estimated design timeline we include in your proposal is specific to your scope.


Q: When does furniture planning start in the interior design process?
A: At concept — not at the end. Furniture layout and interior design inform each other from the first floor plan. Waiting until design development to think about furniture means making those decisions in isolation, which affects both the design and your procurement timeline. By the time we reach the procurement phase, selections have been in development for months.


Q: How does Studio VAE fit into a project team with a contractor and architect?
A: We work closely alongside everyone on your project team. Where an architect is involved, they handle the structural and architectural documentation — we collaborate with them to ensure the interior design and architecture are working together. Your contractor manages the build — sequencing the work, coordinating trades, keeping construction on schedule. Our role throughout is to protect the design intent — reviewing shop drawings, being available for field questions, and ensuring what gets built reflects what was designed. We're not managing your contractor or architect. We're working alongside them, each in our own lane, toward the same finished result.


Q: What happens on installation day?
A: Installation is when the project stops living in drawings and starts living in your home. We're on site with our installation team for every install day. Window treatments go in first, then furniture is placed, art is hung, and accessories are layered in. We work from floor plans and a room-by-room checklist and measure out exactly where each piece belongs. Depending on scope, installation runs anywhere from a few days to one to two weeks.


Q: How important is budget when starting an interior design project?
A: Budget clarity is one of the most important things we establish before a project begins. We need to understand your range so we're designing within it from the start — not presenting a concept you love that doesn't align with what you're able to invest. We develop furniture and material budgets during the Conceptual Design phase specifically so you have a clear picture of where the project is heading before the design goes any deeper. You don't need an exact number on day one, but having a realistic range makes everything that follows more efficient and more honest. If you're unsure where to start, that's part of what our initial conversation is for.

 

Meet Your Interior Designers

Studio VAE is a full-service interior design studio serving the San Francisco Bay Area, led by Principal Interior Designers Veronica Jurist and Aggie Revane.

With decades of experience in high-end hospitality, residential design and interior architecture, they have guided clients through every phase of the process — from the first conversation through installation day — on projects across San Francisco and the Bay Area.

 
Previous
Previous

What Interior Designers Actually Do: Behind the Scenes at a San Francisco Design Studio

Next
Next

What an Interior Designer Does During Construction (and Why It's Nothing Like the Contractor's Role)